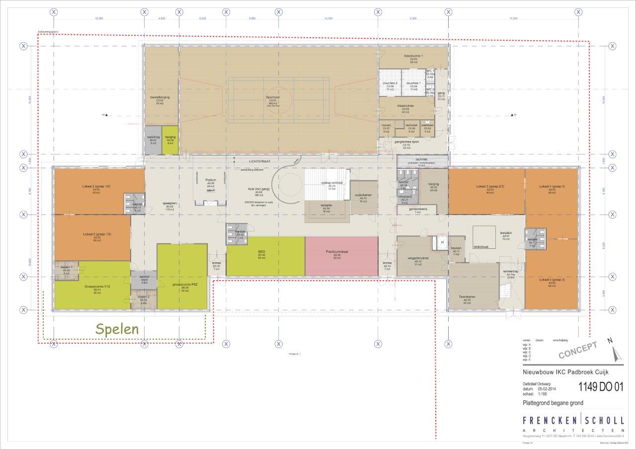
OPTIMUS IKC Padbroek Cuijk

Projectnummer:
TPM11004
Projectnaam:
Huisvesting IKC Padbroek Cuijk
Projectinfo:
Opdrachtgever: Bestuur OPTIMUS
(als penvoerder van OPTIMUS/INVITARE/Spring)
Doorlooptijd: 2013-2017
Stichtingskosten: Cat. € 2.500.000 tot € 5.000.000
M2 BVO: 2.600 m2 nieuwbouw
Projectkenmerk:
Integraal Kind Centrum (Primair Onderwijs, Kinderopvang, Multi Functionele Ruimte)
Gymzaal+
Rol TRATAD:
TPM gemandateerd opdrachtgever, bouwheerschap, bouwdirectie en bouwmanagement
zie ook: www.ikcpadbroekcuijk.nl
Foto's/ tekeningen:
up date 1-3-2016:
situatie
plattegronden
aanzichten
impressie
virtuele tour (video via You Tube stream)
Peildatum 2014:
situatie
tekeningen
impressies








.jpg)
.jpg)
